For Sale

$399,390

HIGHLIGHTS:
  • Active
  • $5,906/month
  • 3 DOM
  • 2 Stories
  • 5 Beds
  • 3 Full & 1 half
  • 2,726 SqFT
Description

NEW! Lennar Richmond Collection "Memorial" Plan with Brick Elevation "A" in Canterra Creek. The first level of this two-story home is host to a generous open floorplan shared between the kitchen, dining room and family room. The covered patio is great for entertaining guests. Office off the entry, as well as the owner’s suite at the back of the home. four more secondary bedrooms are situated upstairs, surrounding a versatile game room.

Overview
  • MLS Number: 95400880
  • Type: Single-Family
  • Bedrooms: 5
  • Bathrooms: 3 Full & 1 half
  • Garages: 3 Attached ,Oversized
  • Size: 2,726 SqF
  • Land Size:
  • Year Built: 2025
Financial
Price:
$399,390
Price/SqFT:
$146.51
Original Price:
$456,390
Reduced $:
$57,000
Reduced On:
Feb 27th, 2026
Reduced %:
12.49 %
HOA Fee:
$927 Annually
Tax Rate:
3.09819 %
Est. Monthly:
$5,906 *
Tax Amount:
$12,374
Amenities and features
  • Water Access
  • New Construction
Property & Schools on Map
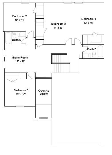
Floor plans / Dimensions / Descriptions
  • Family Room:
    15x20
    Dining:
    10x14
    Kitchen:
    12x15
    Primary Bedroom:
    13x15
  • Bedroom:
    12x10
    Bedroom 2:
    12x12
    Bedroom 3:
    11x17
    Bedroom 4:
    12x11
    Game Room:
    12x11
  • Bathroom Description:
    Half Bath,Primary Bath: Double Sinks,Primary Bath: Separate Shower,Primary Bath: Soaking Tub,Secondary Bath(s): Tub/Shower Combo
    Bedroom Desc:
    Primary Bed - 1st Floor,Walk-In Closet
    Kitchen Desc:
    Breakfast Bar,Pantry,Walk-in Pantry
    Room Description:
    1 Living Area,Breakfast Room,Entry,Family Room,Living Area - 1st Floor,Living/Dining Combo,Utility Room in House
    Heating:
    Central Gas
    Cooling:
    Central Electric
  • Roof:
    Composition
    Foundation:
    Slab
    Private Pool:
    No
    Exterior Type:
    Brick,Cement Board
    Lot Description:
    Subdivision Lot
    Water Sewer:
    Public Water

Listed By:
Jared Turner

Lennar Homes Village Builders, LLC

The data on this website relating to real estate for sale comes in part from the IDX Program of the Houston Association of REALTORS®. All information is believed accurate but not guaranteed. The properties displayed may not be all of the properties available through the IDX Program. Any use of this site other than by potential buyers or sellers is strictly prohibited.

© 2026 Houston Association of REALTORS®.

GET IN TOUCH
avatar
Welcome Home Real Estate