For Sale

$499,000

HIGHLIGHTS:
  • Active
  • $4,839/month
  • 13 DOM
  • 50 SqFT
Description

Escape to total privacy on this exceptional brick home situated on 50+ unrestricted acres of densely wooded land, offering the perfect blend of comfort, functionality, and outdoor recreation. This well-maintained home features 3 bedrooms and 2 bathrooms, a 2-car garage with shop/workshop, and a beautiful back deck complete with hot tub, ideal for relaxing while enjoying peaceful views. The property is equipped with an expansive equipment shed, RV shed with hookups, and a professionally installed storm shelter for peace of mind. The yard is cleared and partially fenced, while the remaining acreage is heavily wooded, teeming with wildlife and perfectly suited for hunting, hiking, and exploring. Tucked away in a very rural setting, this property delivers unmatched privacy, space, and versatility with no restrictions. Whether you are seeking a full-time residence, weekend retreat, or recreational paradise, this property offers endless possibilities in a truly serene environment.

Overview
  • MLS Number: 71331644
  • Type: Country Homes/Acreage - Free Standi
  • Bedrooms: 3
  • Bathrooms: 2 Full
  • Garages: 2 Detached
  • Size: 1,248 SqF
  • Land Size:
  • Year Built: 1978
Financial
Price:
$499,000
Price/SqFT:
$9,980.0
HOA Fee:
Tax Rate:
0 %
Est. Monthly:
$4,839 *
Tax Amount:
$0
Amenities and features
  • Controlled Subdivision
  • Energy Efficient
  • Wooded Lot
Property & Schools on Map
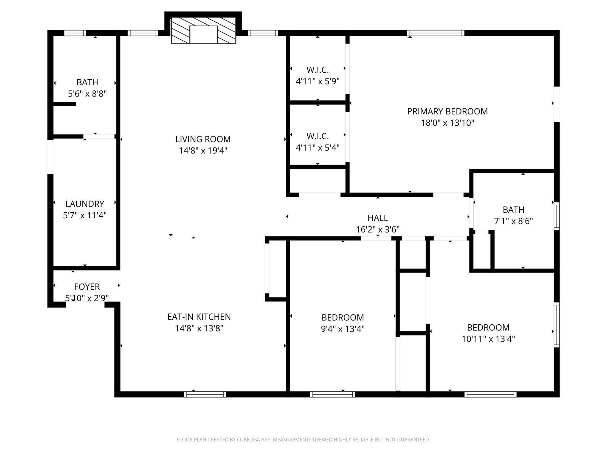
Floor plans / Dimensions / Descriptions
  • Living:
    14x19
    Kitchen:
    14x13
    Primary Bedroom:
    18x13
    Bedroom:
    9x13
    Bedroom 2:
    10x13
    Bath:
    5x8
    Bath 2:
    7x8
    Utility Room:
    5x11
  • Fireplace:
    1/Wood Burning Fireplace
    Bathroom Description:
    Full Secondary Bathroom Down
    Bedroom Desc:
    All Bedrooms Down,Walk-In Closet
    Kitchen Desc:
    Kitchen open to Family Room
    Room Description:
    1 Living Area,Living Area - 1st Floor,Utility Room in House
    Heating:
    Central Electric
    Cooling:
    Central Electric
    Energy Feature:
    Ceiling Fans
  • Foundation:
    Slab
    Private Pool:
    No
    Lot Description:
    Cleared,Wooded
    Carport Description:
    Detached Carport
    Garage Carport:
    Additional Parking,Boat Parking,Driveway Gate,RV Parking,Workshop
    Access:
    Driveway Gate
    Water Sewer:
    Septic Tank,Well
    Road Surface:
    Dirt
    Front Door Face:
    North
    Tree Description:
    Clusters,Densely Wooded,Hardwood,Partial Coverage,Soft Wood

Listed By:
Ashley Jackson-Whitworth

Martindale Real Estate Investments

The data on this website relating to real estate for sale comes in part from the IDX Program of the Houston Association of REALTORS®. All information is believed accurate but not guaranteed. The properties displayed may not be all of the properties available through the IDX Program. Any use of this site other than by potential buyers or sellers is strictly prohibited.

© 2026 Houston Association of REALTORS®.

GET IN TOUCH
avatar
Welcome Home Real Estate