For Sale

$309,990

HIGHLIGHTS:
  • Pending
  • $4,704/month
  • 2 DOM
  • 1 Stories
  • 4 Beds
  • 2 Full
  • 2,039 SqFT
Description

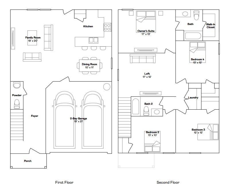
NEW Lennar Cottage Collection "Whitetail" Plan with Brick Elevation "H3" in Anniston! The first floor of this two-story home shares a spacious open layout between the kitchen, dining room and family room for easy entertaining. Upstairs are three secondary bedrooms, ideal for residents and overnight guests, surrounding a versatile loft that serves as an additional shared living space. An owner's suite sprawls across the rear of the second floor and enjoys an en-suite bathroom and a walk-in closet.

Overview
  • MLS Number: 82498712
  • Type: Single-Family
  • Bedrooms: 4
  • Bathrooms: 2 Full
  • Garages: 2 Attached
  • Size: 2,039 SqF
  • Land Size:
  • Year Built: 2025
Financial
Price:
$309,990
Price/SqFT:
$152.03
HOA Fee:
$2200 Annually
Tax Rate:
3.32243 %
Est. Monthly:
$4,704 *
Tax Amount:
$10,299
Amenities and features
  • Water Access
  • New Construction
Property & Schools on Map
Floor plans / Dimensions / Descriptions
  • Family Room:
    16x19
    Dining:
    12x10
    Kitchen:
    1st
    Game Room:
    16x12
  • Primary Bedroom:
    16x12
    Bedroom:
    12x10
    Bedroom 2:
    12x12
    Bedroom 3:
    12x12
  • Heating:
    Central Gas
    Cooling:
    Central Electric
  • Roof:
    Composition
    Foundation:
    Slab
    Private Pool:
    No
    Exterior Type:
    Brick,Cement Board
    Lot Description:
    Subdivision Lot
    Water Sewer:
    Water District

Listed By:
Jared Turner

Lennar Homes Village Builders, LLC

The data on this website relating to real estate for sale comes in part from the IDX Program of the Houston Association of REALTORS®. All information is believed accurate but not guaranteed. The properties displayed may not be all of the properties available through the IDX Program. Any use of this site other than by potential buyers or sellers is strictly prohibited.

© 2026 Houston Association of REALTORS®.

GET IN TOUCH
avatar
Welcome Home Real Estate