For Sale

$290,990

HIGHLIGHTS:
  • Pending
  • $2,831/month
  • 8 DOM
  • 2 Stories
  • 4 Beds
  • 2 Full & 1 half
  • 1,922 SqFT
Description

BRAND NEW Lennar Watermill Collection "Littleton" Plan with Elevation "K1" in Pleasant Hill! On the first floor of this spacious two-story home is a convenient and modern layout seamlessly connecting the kitchen, dining room and family room together. In a private corner is the tranquil owner’s suite with an attached bathroom and walk-in closet. Upstairs is a sprawling central game room made for gatherings of all sizes, along with three secondary bedrooms to provide sleeping accommodations to family members and guests.

Overview
  • MLS Number: 32314602
  • Type: Single-Family
  • Bedrooms: 4
  • Bathrooms: 2 Full & 1 half
  • Garages: 2 Attached
  • Size: 1,922 SqF
  • Land Size:
  • Year Built: 2025
Financial
Price:
$290,990
Price/SqFT:
$151.40
HOA Fee:
$400 Annually
Tax Rate:
0 %
Est. Monthly:
$2,831 *
Tax Amount:
$0
Amenities and features
  • Sewer
  • Water Access
  • New Construction
Property & Schools on Map
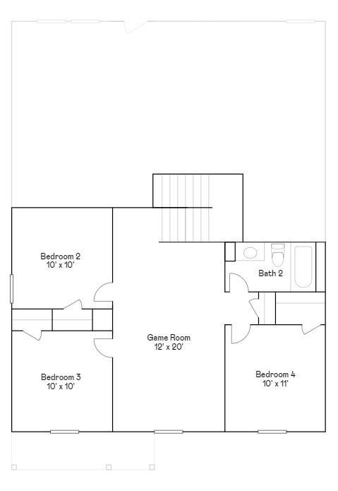
Floor plans / Dimensions / Descriptions
  • Family Room:
    15x16
    Dining:
    10x9
    Kitchen:
    1st
    Primary Bedroom:
    13x15
  • Bedroom:
    10x11
    Bedroom 2:
    10x10
    Bedroom 3:
    10x10
    Game Room:
    12x20
  • Heating:
    Central Gas
    Cooling:
    Central Electric
  • Roof:
    Composition
    Foundation:
    Slab
    Private Pool:
    No
    Exterior Type:
    Brick,Cement Board
    Lot Description:
    Subdivision Lot
    Water Sewer:
    Public Sewer,Public Water

Listed By:
Jared Turner

Lennar Homes Village Builders, LLC

The data on this website relating to real estate for sale comes in part from the IDX Program of the Houston Association of REALTORS®. All information is believed accurate but not guaranteed. The properties displayed may not be all of the properties available through the IDX Program. Any use of this site other than by potential buyers or sellers is strictly prohibited.

© 2026 Houston Association of REALTORS®.

GET IN TOUCH
avatar
Welcome Home Real Estate