For Sale

$349,990

HIGHLIGHTS:
  • Active
  • $3,487/month
  • 1 DOM
  • 2 Stories
  • 3 Beds
  • 2 Full & 1 half
  • 2,539 SqFT
Description

NEW! Village Builders Bristol Collection 'Thornton' Plan with Elevation "A" in The Grand Prairie! This two-story home has a classic layout for families with the owner’s suite on one floor and the other bedrooms on another. Beside the front door is a study, while down the hall is the open concept living area with a back patio attached. The owner’s suite is tucked into a corner of the first floor with a full bedroom and walk-in closet. Upstairs are two additional bedrooms and a versatile game room. Virtual tour is a representation of the floor plan and not of the actual home.

Overview
  • MLS Number: 56786677
  • Type: Single-Family
  • Bedrooms: 3
  • Bathrooms: 2 Full & 1 half
  • Garages: N/A
  • Size: 2,539 SqF
  • Land Size:
  • Year Built: 2026
Financial
Price:
$349,990
Price/SqFT:
$137.85
Original Price:
$377,990
Reduced $:
$28,000
Reduced On:
Apr 17th, 2026
Reduced %:
7.41 %
HOA Fee:
$1200 Annually
Tax Rate:
0 %
Est. Monthly:
$3,487 *
Tax Amount:
$0
Amenities and features
  • Sewer
  • Study Room
  • Water Access
  • New Construction
Property & Schools on Map
Floor plans / Dimensions / Descriptions
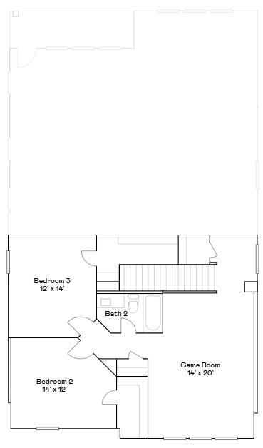
  • Family Room:
    17x14
    Dining:
    15x11
    Kitchen:
    10x15
    Primary Bedroom:
    16x19
    Home Office/Study:
    10x11
  • Bedroom:
    14x12
    Bedroom 2:
    12x14
    Game Room:
    14x20
  • Room Description:
    Family Room,Gameroom Up,Home Office/Study,Living Area - 1st Floor,Utility Room in House
    Bedroom Desc:
    Primary Bed - 1st Floor
    Cooling:
    Central Electric
    Heating:
    Central Gas
    Dishwasher:
    Yes
    Ice Maker:
    No
    Microwave:
    Yes
    Compactor:
    No
    Disposal:
    Yes
  • Roof:
    Composition
    Foundation:
    Slab
    Private Pool:
    No
    Exterior Type:
    Brick,Cement Board
    Lot Description:
    Subdivision Lot
    Water Sewer:
    Public Sewer,Water District

Listed By:
Jared Turner

Lennar Homes Village Builders, LLC

The data on this website relating to real estate for sale comes in part from the IDX Program of the Houston Association of REALTORS®. All information is believed accurate but not guaranteed. The properties displayed may not be all of the properties available through the IDX Program. Any use of this site other than by potential buyers or sellers is strictly prohibited.

© 2026 Houston Association of REALTORS®.

GET IN TOUCH
avatar
Welcome Home Real Estate