For Sale

$1,000,000

HIGHLIGHTS:
  • Active
  • $12,375/month
  • 9 DOM
  • 20 SqFT
Description

Arrive home to approximately 20 park-like acres featuring a charming 2 bedroom home surrounded by abundant nature; a live running creek and a spring fed stocked pond with pier! Fully fenced and maintains a wildlife tax exemption. Additionally included is a 40x75 engineered Mueller metal building with guest apartment, 3 Priefert horse stalls, tack room, workshop, interior RV parking and 2nd story storage structured for further buildout. Whole house generator, water softener and so much more. Plenty of room to add a second home for your family compound! See this slice of heaven on a private, quiet cul-de-sac!

Overview
  • MLS Number: 82854182
  • Type: Country Homes/Acreage - Free Standi
  • Bedrooms: 2
  • Bathrooms: 2 Full & 1 half
  • Garages: N/A
  • Size: 1,040 SqF
  • Land Size:
  • Year Built: 1992
Financial
Price:
$1,000,000
Price/SqFT:
$50,000.0
HOA Fee:
Tax Rate:
1.6199 %
Est. Monthly:
$12,375 *
Tax Amount:
$16,199
Amenities and features
  • Garage Apartment
  • Controlled Subdivision
  • Energy Efficient
  • Lake/River Access
  • Water View
  • Wooded Lot
Property & Schools on Map
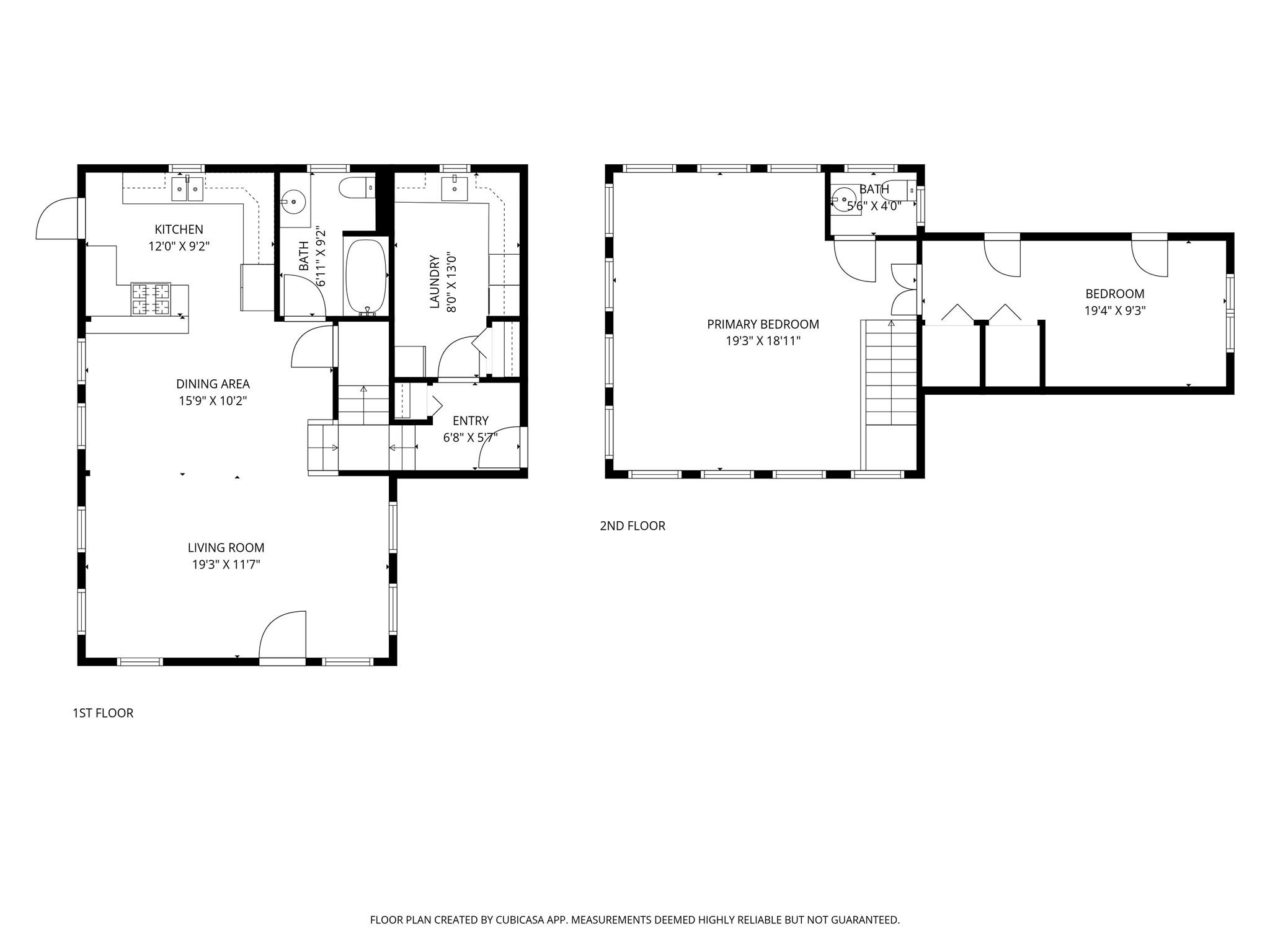
Floor plans / Dimensions / Descriptions
  • Living:
    10 x 20
    Kitchen:
    10.6 x 11.12
    Breakfast:
    9.0 x 15.8
    Bath:
    9.5 x 5.10
    Utility Room:
    12.12 x 7.6
    Entry:
    5.4 x 5.5
  • Primary Bedroom:
    15.8 x 19.6
    Bedroom:
    19.9 x 9.4
    Bath:
    4.6 x 5.0
  • Fireplace:
    1/Freestanding
    Floors:
    Carpet,Laminate,Wood
    Bathroom Description:
    Primary Bath: Tub/Shower Combo
    Bedroom Desc:
    All Bedrooms Up,Primary Bed - 2nd Floor
    Kitchen Desc:
    Breakfast Bar
    Room Description:
    Breakfast Room,Family Room
    Heating:
    Central Electric,Other Heating,Propane
    Cooling:
    Central Electric,Window Units
    Connections:
    Electric Dryer Connections,Washer Connections
    Dishwasher:
    Yes
    Microwave:
    Yes
    Range:
    Freestanding Range,Gas Cooktop
    Oven:
    Freestanding Oven,Gas Oven
    Energy Feature:
    Ceiling Fans,Generator
    Interior:
    Fire/Smoke Alarm,High Ceiling,Refrigerator Included,Water Softener - Owned,Window Coverings
  • Foundation:
    Block & Beam
    Private Pool:
    No
    Lot Description:
    Cleared,Water View,Wooded
    Water Amenity:
    Lake View,Pier,Pond
    Carport Description:
    Attached Carport
    Garage Carport:
    Additional Parking,Auto Driveway Gate,Boat Parking,Extra Driveway,Porte-Cochere,RV Parking,Workshop
    Access:
    Automatic Gate,Driveway Gate
    Water Sewer:
    Septic Tank,Well
    Road Surface:
    Asphalt,Gravel
    Front Door Face:
    West
    Tree Description:
    Clusters,Hardwood

Listed By:
Marta Peralta

Keller Williams Realty Metropolitan

The data on this website relating to real estate for sale comes in part from the IDX Program of the Houston Association of REALTORS®. All information is believed accurate but not guaranteed. The properties displayed may not be all of the properties available through the IDX Program. Any use of this site other than by potential buyers or sellers is strictly prohibited.

© 2026 Houston Association of REALTORS®.

GET IN TOUCH
avatar
Welcome Home Real Estate