For Sale

$399,990

HIGHLIGHTS:
  • Active
  • $5,038/month
  • 1 DOM
  • 2 Stories
  • 5 Beds
  • 3 Full & 1 half
  • 2,726 SqFT
Description

BRAND NEW Lennar "Memorial" Plan with Elevation "E" in Colton! The first floor of this two-story home shares an open layout between the kitchen, nook and family room for ease of entertaining and access to a covered patio for outdoor lounging. The owner's suite is adjacent to the shared living space, featuring an en-suite bath and large walk-in closet. A study located near the entry provides a designated work or flex space. Upstairs are four secondary bedrooms and two full-sized baths surrounding a versatile game room. Prices and features may vary and are subject to change. Photos are for illustrative purposes only.

Overview
  • MLS Number: 23083709
  • Type: Single-Family
  • Bedrooms: 5
  • Bathrooms: 3 Full & 1 half
  • Garages: 2 Attached
  • Size: 2,726 SqF
  • Land Size:
  • Year Built: 2026
Financial
Price:
$399,990
Price/SqFT:
$146.73
Original Price:
$430,990
Reduced $:
$31,000
Reduced On:
Apr 14th, 2026
Reduced %:
7.19 %
HOA Fee:
$1385 Annually
Tax Rate:
1.5831 %
Est. Monthly:
$5,038 *
Tax Amount:
$6,332
Amenities and features
  • Study Room
  • Water Access
  • New Construction
Property & Schools on Map
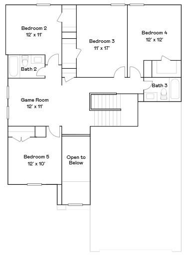
Floor plans / Dimensions / Descriptions
  • Family Room:
    15x20
    Dining:
    10x14
    Kitchen:
    12x15
    Primary Bedroom:
    13x15
    Primary Bath:
    1st
    Home Office/Study:
    12x11
  • Bedroom:
    12x11
    Bedroom 2:
    11x17
    Bedroom 3:
    12x12
    Bedroom 4:
    12x10
    Bath:
    2nd
    Bath 2:
    2nd
    Game Room:
    12x11
  • Cooling:
    Central Electric
    Heating:
    Central Gas
    Microwave:
    Yes
    Disposal:
    Yes
    Dishwasher:
    Yes
  • Roof:
    Composition
    Foundation:
    Slab
    Private Pool:
    No
    Exterior Type:
    Brick
    Lot Description:
    Subdivision Lot
    Water Sewer:
    Water District

Listed By:
Jared Turner

Lennar Homes Village Builders, LLC

The data on this website relating to real estate for sale comes in part from the IDX Program of the Houston Association of REALTORS®. All information is believed accurate but not guaranteed. The properties displayed may not be all of the properties available through the IDX Program. Any use of this site other than by potential buyers or sellers is strictly prohibited.

© 2026 Houston Association of REALTORS®.

GET IN TOUCH
avatar
Welcome Home Real Estate