For Sale

$425,000

HIGHLIGHTS:
  • Active
  • $5,741/month
  • 4 DOM
  • 5 SqFT
Description

Discover the perfect blend of country living and functionality with this beautiful 3BR/2.5BA brick home on 5+/- unrestricted acres complete with a charming 1BR/1BA guest home! The main residence offers an inviting open-concept floor plan featuring abundant storage, a spacious kitchen open to the dining and living areas, cozy fireplace, heated and cooled sun porch, and 2-car garage with additional storage. The guest home is ideal for multi-generational living, guests, or income-producing potential, offering its own kitchen, living space with fireplace, and private rear entrance. Outdoors, the property is fully equipped for your rural lifestyle with improved pasture, two spring-fed ponds, horse stables with automatic water troughs, tack room, equipment storage, and ample room for horses or livestock. Whether you're seeking a homestead, mini ranch, or income-producing retreat, this versatile property offers endless possibilities with the freedom of unrestricted acreage!

Overview
  • MLS Number: 19843061
  • Type: Country Homes/Acreage - Free Standi
  • Bedrooms: 4
  • Bathrooms: 3 Full & 1 half
  • Garages: 2 Attached
  • Size: 1,720 SqF
  • Land Size:
  • Year Built: 1979
Financial
Price:
$425,000
Price/SqFT:
$85,000.0
HOA Fee:
Tax Rate:
2.0902 %
Est. Monthly:
$5,741 *
Tax Amount:
$8,883
Video Tour
Amenities and features
  • Garage Apartment
  • Water Access
  • Energy Efficient
  • Waterfront
  • Wooded Lot
Property & Schools on Map
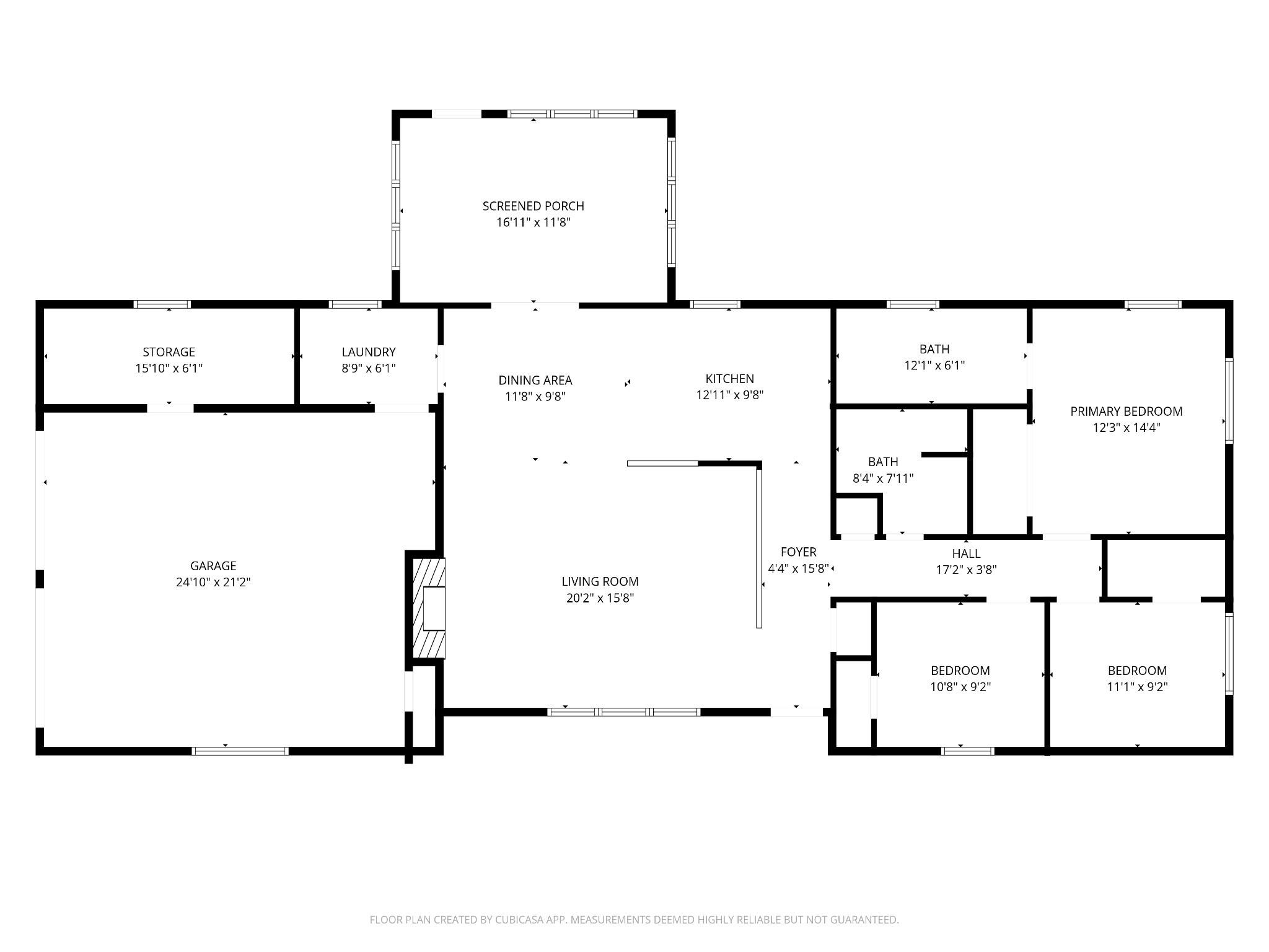
Floor plans / Dimensions / Descriptions
  • Primary Bedroom:
    12X14
    Bedroom:
    12X13
    Bedroom 2:
    11X9
    Bedroom 3:
    10X9
  • Fireplace:
    2/Wood Burning Fireplace
    Bathroom Description:
    Full Secondary Bathroom Down
    Bedroom Desc:
    All Bedrooms Down,En-Suite Bath,Primary Bed - 1st Floor,Walk-In Closet
    Kitchen Desc:
    Kitchen open to Family Room
    Room Description:
    1 Living Area,Kitchen/Dining Combo,Living/Dining Combo,Quarters/Guest House,Sun Room,Utility Room in House
    Heating:
    Central Electric
    Cooling:
    Central Electric
    Connections:
    Electric Dryer Connections,Washer Connections
    Energy Feature:
    Ceiling Fans,Digital Program Thermostat,Insulation - Blown Fiberglass
  • Foundation:
    Slab
    Private Pool:
    No
    Water Amenity:
    Pond
    Lot Description:
    Cleared,Waterfront,Wooded
    Garage Carport:
    Additional Parking,Boat Parking,Circle Driveway,Extra Driveway,Workshop
    Water Sewer:
    Public Water,Septic Tank
    Road Surface:
    Asphalt
    Tree Description:
    Clusters,Partial Coverage

Listed By:
Ashley Jackson-Whitworth

Martindale Real Estate Investments

The data on this website relating to real estate for sale comes in part from the IDX Program of the Houston Association of REALTORS®. All information is believed accurate but not guaranteed. The properties displayed may not be all of the properties available through the IDX Program. Any use of this site other than by potential buyers or sellers is strictly prohibited.

© 2026 Houston Association of REALTORS®.

GET IN TOUCH
avatar
Welcome Home Real Estate