For Sale

$899,000

HIGHLIGHTS:
  • Active
  • $12,060/month
  • 85 DOM
  • 2 Stories
  • 0 Beds
  • 4,320 SqFT
Description

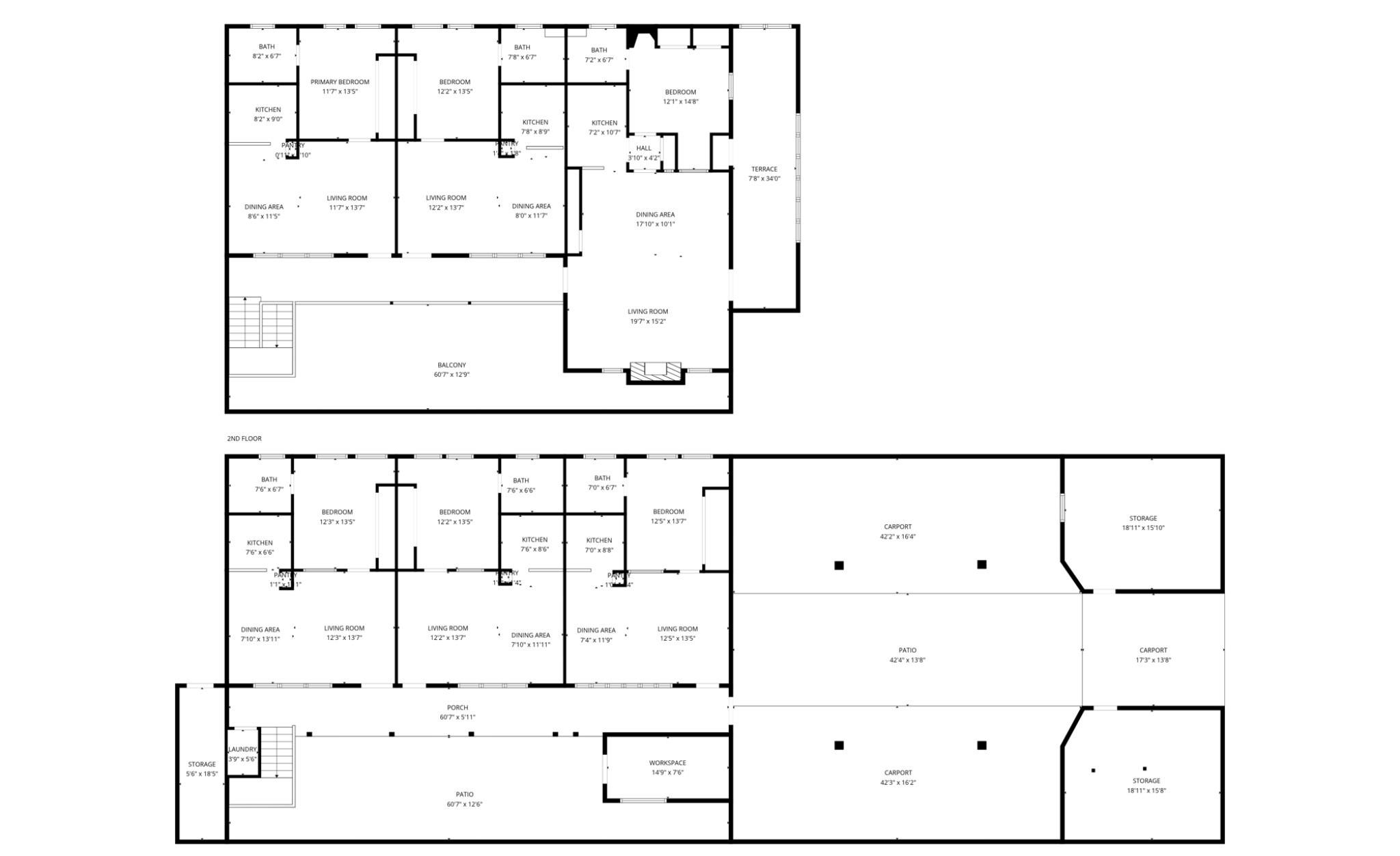
Don't miss out on this fantastic investment opportunity! We are excited to present a property sale consisting of six charming 1-bed, 1-bath units. Each unit features a cozy living room, a dining room, kitchen, and a spacious bedroom. Out of the six units, four boast hardwood flooring, while the remaining two are comfortably carpeted.Situated on a 6,250 SF lot, the building itself spans an impressive 4,320 SF. Each unit comes with its own carport. The property is fully fenced and features private access doors for added security and privacy. Additionally, there is a beautifully patio area.This property is ideally located near the Medical Center, Downtown, Greenway Plaza, and the Galleria. With easy access to major freeways such as US 59 and 610, commuting is a breeze.This is a remarkable opportunity for investors looking to acquire a well-maintained property in a prime location. The property is currently unoccupied so you can choose your own tenants.

Overview
  • MLS Number: 73412821
  • Type: Multi-Family
  • Bedrooms: N/A
  • Bathrooms: N/A
  • Garages: N/A
  • Size: 4,320 SqF
  • Land Size: 6,250 sqft
  • Year Built: 1955
Financial
Price:
$899,000
Price/SqFT:
$208.10
Original Price:
$920,000
Reduced $:
$21,000
Reduced On:
Mar 31st, 2026
Reduced %:
2.28 %
HOA Fee:
Tax Rate:
2.09236 %
Est. Monthly:
$12,060 *
Tax Amount:
$18,810
Amenities and features
  • Controlled Subdivision
  • Energy Efficient
Property & Schools on Map
Floor plans / Dimensions / Descriptions
  • Floors:
    Carpet,Tile,Wood
    Countertop:
    Tile and formica
    Heating:
    Window Unit
    Cooling:
    Window Units
    Dishwasher:
    Yes
    Disposal:
    Yes
    Microwave:
    Yes
    Energy Feature:
    Ceiling Fans
  • Roof:
    Composition
    Exterior Type:
    Brick,Other,Wood
    Lot Description:
    Cleared
    Parking:
    Auto Garage Door Opener,Carport Parking
    Parking Unit:
    One
    Access:
    Automatic Gate

Listed By:
Douglas Rodriguez

HomeSmart

The data on this website relating to real estate for sale comes in part from the IDX Program of the Houston Association of REALTORS®. All information is believed accurate but not guaranteed. The properties displayed may not be all of the properties available through the IDX Program. Any use of this site other than by potential buyers or sellers is strictly prohibited.

© 2026 Houston Association of REALTORS®.

GET IN TOUCH
avatar
Welcome Home Real Estate