For Sale

$875,000

HIGHLIGHTS:
  • Active
  • $10,831/month
  • 24 DOM
  • 9 SqFT
Description

Rare opportunity to acquire 9.337 acres across multiple tracts in unincorporated Montgomery County, set back from FM 1097 for privacy and adjacent to a horse sanctuary. No HOA and flexible use potential. The property includes an as-is estate shell and is best suited for investors, builders, or vision-driven buyers seeking a value-add project with scale. The existing structure requires remediation and re-imagining, and the property is not currently build-ready. Buyers should expect to address infrastructure, grading, and site preparation as part of their plans. This offering is ideal for creating a private estate, retreat, compound, or high-end resale in a desirable Montgomery County location. Comparable acreage in the area is increasingly difficult to assemble at this size, making this a compelling land-first opportunity with upside. Offered as-is.

Overview
  • MLS Number: 62674621
  • Type: Country Homes/Acreage
  • Bedrooms: N/A
  • Bathrooms: 4 Full & 1 half
  • Garages: 6 Detached
  • Size: 7,307 SqF
  • Land Size:
  • Year Built: 1987
Financial
Price:
$875,000
Price/SqFT:
$97,222.2
HOA Fee:
Tax Rate:
1.6199 %
Est. Monthly:
$10,831 *
Tax Amount:
$14,174
Amenities and features
Property & Schools on Map
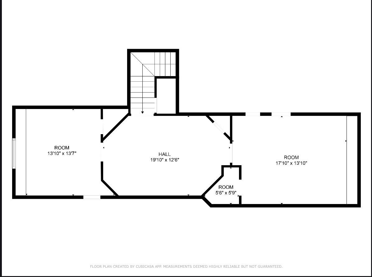
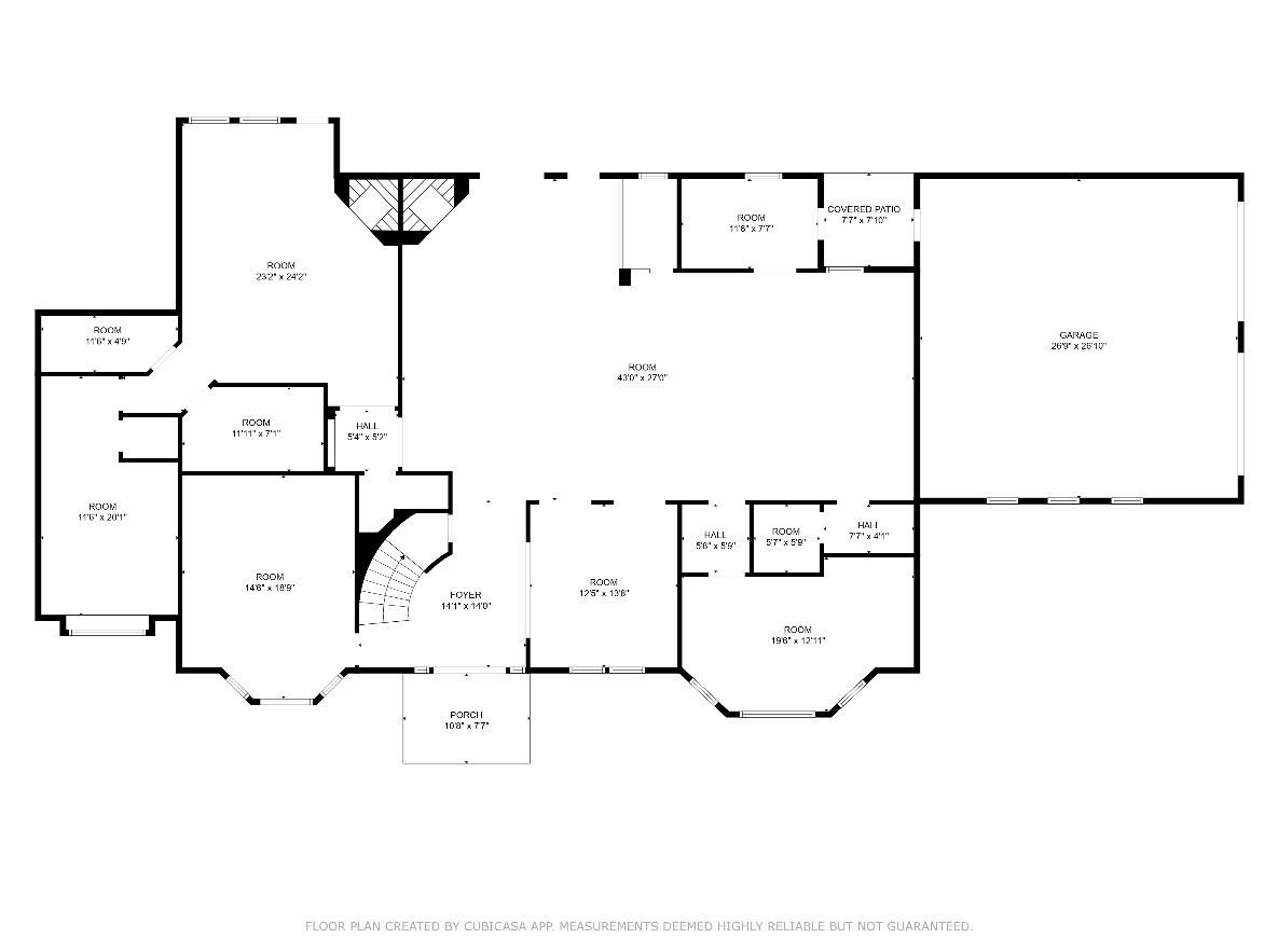
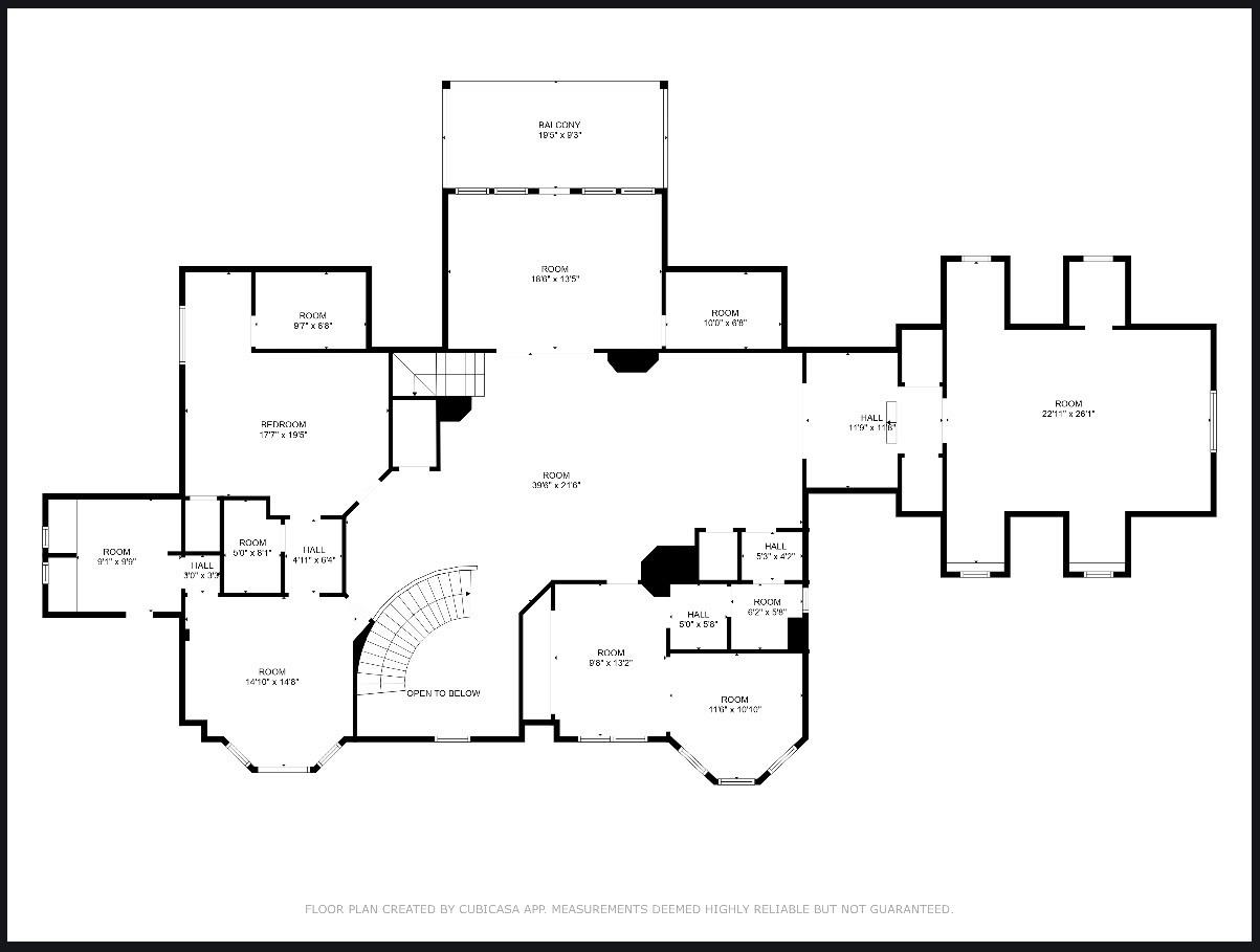
Floor plans / Dimensions / Descriptions
  • Fireplace:
    3
    Heating:
    No Heating
    Cooling:
    No Cooling/Vent
  • Private Pool:
    No
    Water Sewer:
    Public Water,Septic Tank
    Road Surface:
    Gravel

Listed By:
Kiki Baker

eXp Realty LLC

The data on this website relating to real estate for sale comes in part from the IDX Program of the Houston Association of REALTORS®. All information is believed accurate but not guaranteed. The properties displayed may not be all of the properties available through the IDX Program. Any use of this site other than by potential buyers or sellers is strictly prohibited.

© 2026 Houston Association of REALTORS®.

GET IN TOUCH
avatar
Welcome Home Real Estate