For Sale

$265,000

HIGHLIGHTS:
  • Active
  • $3,375/month
  • 1 DOM
  • 2 Stories
  • 3 Beds
  • 2 Full & 1 half
  • 2,373 SqFT
Description

Beautifully upgraded 2-story home on a massive corner lot featuring a whole-home Generac generator for reliable backup power and peace of mind. A bright, added sunroom creates the perfect flex space for relaxing, entertaining, or a home office. The fully powered 25’ x 25’ workshop includes an 80-ft underground electric line ideal for projects or storage. Enjoy outdoor living under the custom 25’ x 25’ pergola overlooking the above-ground pool with deck and 20-ft electric run for lighting, speakers, or TV. Eave lighting surrounds the home, creating stunning curb appeal day and night. Lovingly maintained and truly move-in ready, this home offers upgrades and amenities rarely found together at this price point. Priced to sell! Schedule your showing today!

Overview
  • MLS Number: 41252625
  • Type: Single-Family
  • Bedrooms: 3
  • Bathrooms: 2 Full & 1 half
  • Garages: 2 Attached
  • Size: 2,373 SqF
  • Land Size: 13,068 sqft
  • Year Built: 2020
Financial
Price:
$265,000
Price/SqFT:
$111.67
HOA Fee:
$120 Annually
Tax Rate:
1.8541 %
Est. Monthly:
$3,375 *
Tax Amount:
$4,913
Amenities and features
  • Patio/Deck
  • Private Pool
  • Sewer
  • Water Access
  • Yard
  • Corner Lot
  • Energy Efficient
Property & Schools on Map
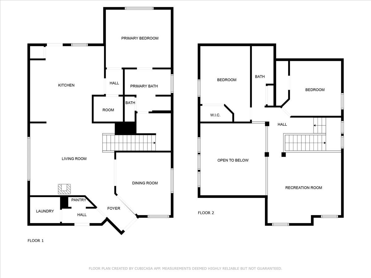
Floor plans / Dimensions / Descriptions
  • Primary Bedroom:
    13x12
  • Bedroom:
    12x11
    Bedroom 2:
    11x10
  • Floors:
    Carpet,Vinyl
    Bathroom Description:
    Half Bath,Primary Bath: Double Sinks,Primary Bath: Separate Shower
    Bedroom Desc:
    2 Bedrooms Up,En-Suite Bath,Primary Bed - 1st Floor,Walk-In Closet
    Kitchen Desc:
    Breakfast Bar,Kitchen open to Family Room,Pantry,Under Cabinet Lighting
    Room Description:
    1 Living Area,Entry,Formal Dining,Gameroom Up,Kitchen/Dining Combo,Living Area - 1st Floor,Living/Dining Combo,Sun Room,Utility Room in House
    Heating:
    Central Gas
    Cooling:
    Central Electric
    Connections:
    Electric Dryer Connections,Washer Connections
    Dishwasher:
    Yes
    Disposal:
    Yes
    Microwave:
    Yes
    Range:
    Freestanding Range,Gas Cooktop
    Oven:
    Freestanding Oven,Gas Oven
    Energy Feature:
    Ceiling Fans,Digital Program Thermostat,High-Efficiency HVAC
    Interior:
    Crown Molding,Fire/Smoke Alarm,Formal Entry/Foyer,High Ceiling
  • Roof:
    Composition
    Foundation:
    Slab
    Private Pool:
    Yes
    Private Pool Desc:
    Above Ground
    Exterior Type:
    Brick,Vinyl
    Lot Description:
    Corner,Subdivision Lot
    Garage Carport:
    Auto Garage Door Opener,Workshop
    Water Sewer:
    Public Sewer,Public Water
    Exterior:
    Back Yard,Back Yard Fenced,Covered Patio/Deck,Patio/Deck,Porch,Storage Shed,Workshop

Listed By:
Jerrice Bridges

San Jacinto Properties

The data on this website relating to real estate for sale comes in part from the IDX Program of the Houston Association of REALTORS®. All information is believed accurate but not guaranteed. The properties displayed may not be all of the properties available through the IDX Program. Any use of this site other than by potential buyers or sellers is strictly prohibited.

© 2026 Houston Association of REALTORS®.

GET IN TOUCH
avatar
Welcome Home Real Estate