For Sale

$240,000

HIGHLIGHTS:
  • Active
  • $2,319/month
  • 10 DOM
  • 1 Stories
  • 4 Beds
  • 2 Full
  • 1,891 SqFT
Description

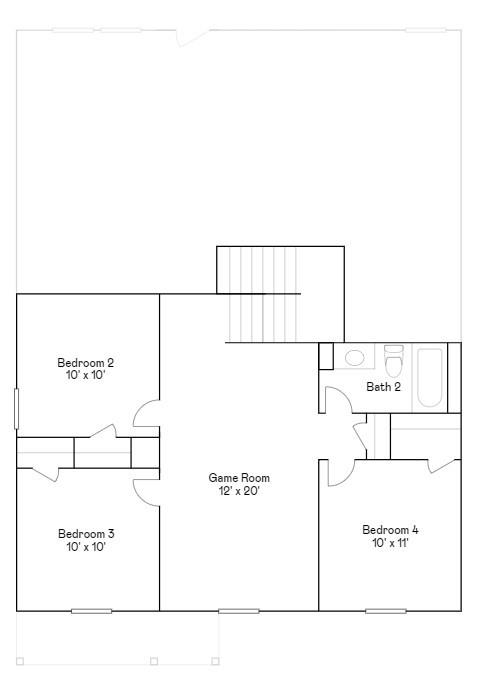
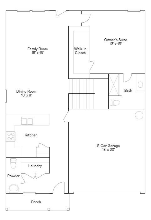
NEW! Lennar Core Watermill Collection "Littleton" Plan with Siding Elevation "C" in Anniston! On the first floor of this spacious two-story home is a convenient and modern layout seamlessly connecting the kitchen, dining room and family room together. In a private corner is the tranquil owner’s suite with an attached bathroom and walk-in closet. Upstairs is a sprawling central game room made for gatherings of all sizes, along with three secondary bedrooms to provide sleeping accommodations to family members and guests.

Overview
  • MLS Number: 2345632
  • Type: Single-Family
  • Bedrooms: 4
  • Bathrooms: 2 Full
  • Garages: 2 Attached
  • Size: 1,891 SqF
  • Land Size:
  • Year Built: 2026
Financial
Price:
$240,000
Price/SqFT:
$126.92
Original Price:
$287,990
Reduced $:
$47,990
Reduced On:
Feb 20th, 2026
Reduced %:
16.66 %
HOA Fee:
$432 Annually
Tax Rate:
0 %
Est. Monthly:
$2,319 *
Tax Amount:
$0
Amenities and features
  • New Construction
Property & Schools on Map
Floor plans / Dimensions / Descriptions
  • Family Room:
    15x16
    Dining:
    10x9
    Kitchen:
    1st
    Primary Bedroom:
    13x15
  • Bedroom:
    10x11
    Bedroom 2:
    10x10
    Bedroom 3:
    10x10
    Game Room:
    12x20
  • Heating:
    Central Gas
    Cooling:
    Central Electric
  • Roof:
    Composition
    Foundation:
    Slab
    Private Pool:
    No
    Exterior Type:
    Cement Board
    Lot Description:
    Subdivision Lot
    Water Sewer:
    Water District

Listed By:
Jared Turner

Lennar Homes Village Builders, LLC

The data on this website relating to real estate for sale comes in part from the IDX Program of the Houston Association of REALTORS®. All information is believed accurate but not guaranteed. The properties displayed may not be all of the properties available through the IDX Program. Any use of this site other than by potential buyers or sellers is strictly prohibited.

© 2026 Houston Association of REALTORS®.

GET IN TOUCH
avatar
Welcome Home Real Estate