For Sale

$535,000

HIGHLIGHTS:
  • Active
  • $7,052/month
  • 1 DOM
  • 4 Stories
  • 3 Beds
  • 3 Full & 1 half
  • 2,650 SqFT
Description

Life unfolds vertically in this striking 4-story home situated just steps from Buffalo Bayou, where thoughtful design and elevated city living meet. Beyond the front gate, double doors open to a welcoming entry, setting the tone as you arrive. The 1st level offers a private en-suite bedroom, while the 2nd level opens to light-filled living spaces with soaring ceilings, wide-plank oak floors, oversized windows with remote solar shades, and kitchen with generous counter space and beverage fridge. The luxurious 3rd floor primary retreat includes a private study, expansive walk-in closet and bath featuring dual vanities, a jetted tub, and oversized walk-in shower. Each bedroom in the home includes its own en-suite bath, offering privacy across all levels. Enjoy skyline views and city lights from the rooftop terrace. Additional highlights include a rear-entry 2-car garage, gated alley access, and 2018 roof. Centrally located just minutes from Downtown, Midtown, Montrose, and The Heights.

Overview
  • MLS Number: 92847842
  • Type: Townhouse/Condo - Townhouse
  • Bedrooms: 3
  • Bathrooms: 3 Full & 1 half
  • Garages: 2 Attached
  • Size: 2,650 SqF
  • Land Size: 1,845 sqft
  • Year Built: 2007
Financial
Price:
$535,000
Price/SqFT:
$201.89
HOA Fee:
$1929 Annually
Tax Rate:
2.09236 %
Est. Monthly:
$7,052 *
Tax Amount:
$11,194
Amenities and features
  • Patio/Deck
  • Sewer
  • Study Room
  • Water Access
  • Yard
  • Controlled Subdivision
  • Energy Efficient
Property & Schools on Map
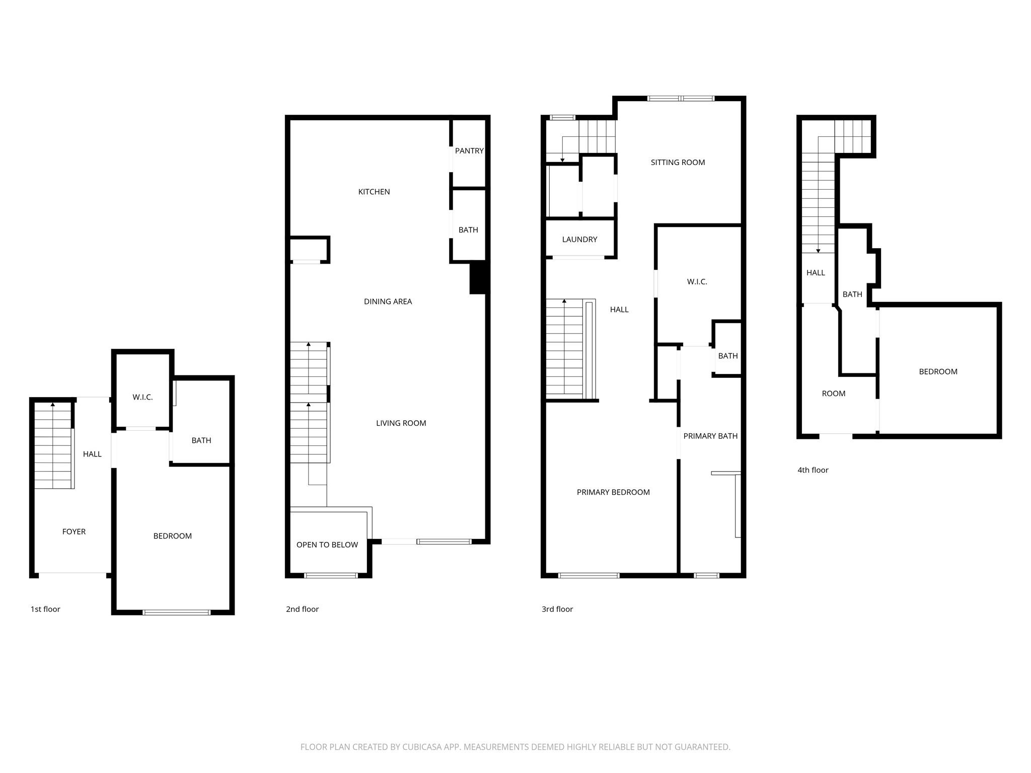
Floor plans / Dimensions / Descriptions
  • Living:
    19x19
    Dining:
    19x8
    Kitchen:
    16x14
  • Primary Bedroom:
    17x13
    Home Office/Study:
    12x12
  • Bedroom:
    18x11
    Entry:
    8x8
  • Bedroom:
    12x11.5
  • Floors:
    Tile,Vinyl Plank,Wood
    Countertop:
    Granite
    Bathroom Description:
    Full Secondary Bathroom Down,Half Bath,Primary Bath: Double Sinks,Primary Bath: Jetted Tub,Primary Bath: Separate Shower,Secondary Bath(s): Shower Only,Secondary Bath(s): Tub/Shower Combo
    Bedroom Desc:
    1 Bedroom Down - Not Primary BR,2 Bedrooms Up,En-Suite Bath,Primary Bed - 3rd Floor,Split Plan,Walk-In Closet
    Kitchen Desc:
    Breakfast Bar,Island w/o Cooktop,Kitchen open to Family Room,Pantry,Walk-in Pantry
    Room Description:
    Entry,Family Room,Home Office/Study,Kitchen/Dining Combo,Living Area - 2nd Floor,Utility Room in House
    Heating:
    Central Gas,Zoned
    Cooling:
    Central Electric,Zoned
    Washer/Dryer Conn:
    Yes
    Dishwasher:
    Yes
    Disposal:
    No
    Compactor:
    No
    Microwave:
    Yes
    Range:
    Gas Cooktop
    Oven:
    Gas Oven
    Ice Maker:
    No
    Appliances:
    Refrigerator
    Energy Feature:
    Ceiling Fans
    Interior:
    Alarm System - Leased,Fire/Smoke Alarm,Formal Entry/Foyer,High Ceiling,Refrigerator Included,Vaulted Ceiling,Wine/Beverage Fridge
  • Roof:
    Composition
    Foundation:
    Slab
    Private Pool:
    No
    Exterior Type:
    Stucco
    Parking:
    Auto Garage Door Opener,Automatic Driveway Gate,Controlled Entrance,Driveway Gate
    Access:
    Automatic Gate,Driveway Gate
    Water Sewer:
    Public Sewer,Public Water
    Views:
    West
    Front Door Face:
    Southeast
    Unit Location:
    On Street
    Area Pool:
    No
    Exterior:
    Artificial Turf,Balcony,Controlled Access,Front Yard,Rooftop Deck

Listed By:
Lauren Ashley

Better Homes and Gardens Real Estate Gary Greene - The Woodlands

The data on this website relating to real estate for sale comes in part from the IDX Program of the Houston Association of REALTORS®. All information is believed accurate but not guaranteed. The properties displayed may not be all of the properties available through the IDX Program. Any use of this site other than by potential buyers or sellers is strictly prohibited.

© 2026 Houston Association of REALTORS®.

GET IN TOUCH
avatar
Welcome Home Real Estate