For Sale

$675,000

HIGHLIGHTS:
  • Pending
  • $8,613/month
  • 6 DOM
  • Stories
  • 3 Beds
  • 2 Full
  • 1,261 SqFT
Description

Welcome to this 6th-floor residence at Diamond Beach, offered for the first time by the original owner. This 3-bedroom, 2-bath condominium captures incredible Gulf views from its elevated vantage point. Expansive windows and a large private balcony invite you to start your mornings with the sound of waves and endless water views stretching across the horizon. Inside, the open layout is designed for comfortable coastal living, featuring quality finishes, top-tier appliances throughout. Diamond Beach is known for its exceptional resort-style amenities including a lazy river, indoor heated pool, hot tubs, fitness center, spa, cinema room, and 24/7 concierge service. Whether you're seeking a beachfront retreat or an investment opportunity, this residence offers a rare chance to own in one of Galveston’s premier luxury communities.

Overview
  • MLS Number: 47423361
  • Type: Mid/Hi-Rise Condo
  • Bedrooms: 3
  • Bathrooms: 2 Full
  • Garages: N/A
  • Size: 1,261 SqF
  • Land Size:
  • Year Built: 2009
Financial
Price:
$675,000
Price/SqFT:
$535.29
HOA Fee:
$2000 Monthly
Tax Rate:
1.69525 %
Est. Monthly:
$8,613 *
Tax Amount:
$11,443
Amenities and features
  • Elevator
  • Party Room
  • Public Pool
  • Spa/Hot Tub
  • Controlled Subdivision
  • Energy Efficient
  • Waterfront
  • Water View
Property & Schools on Map
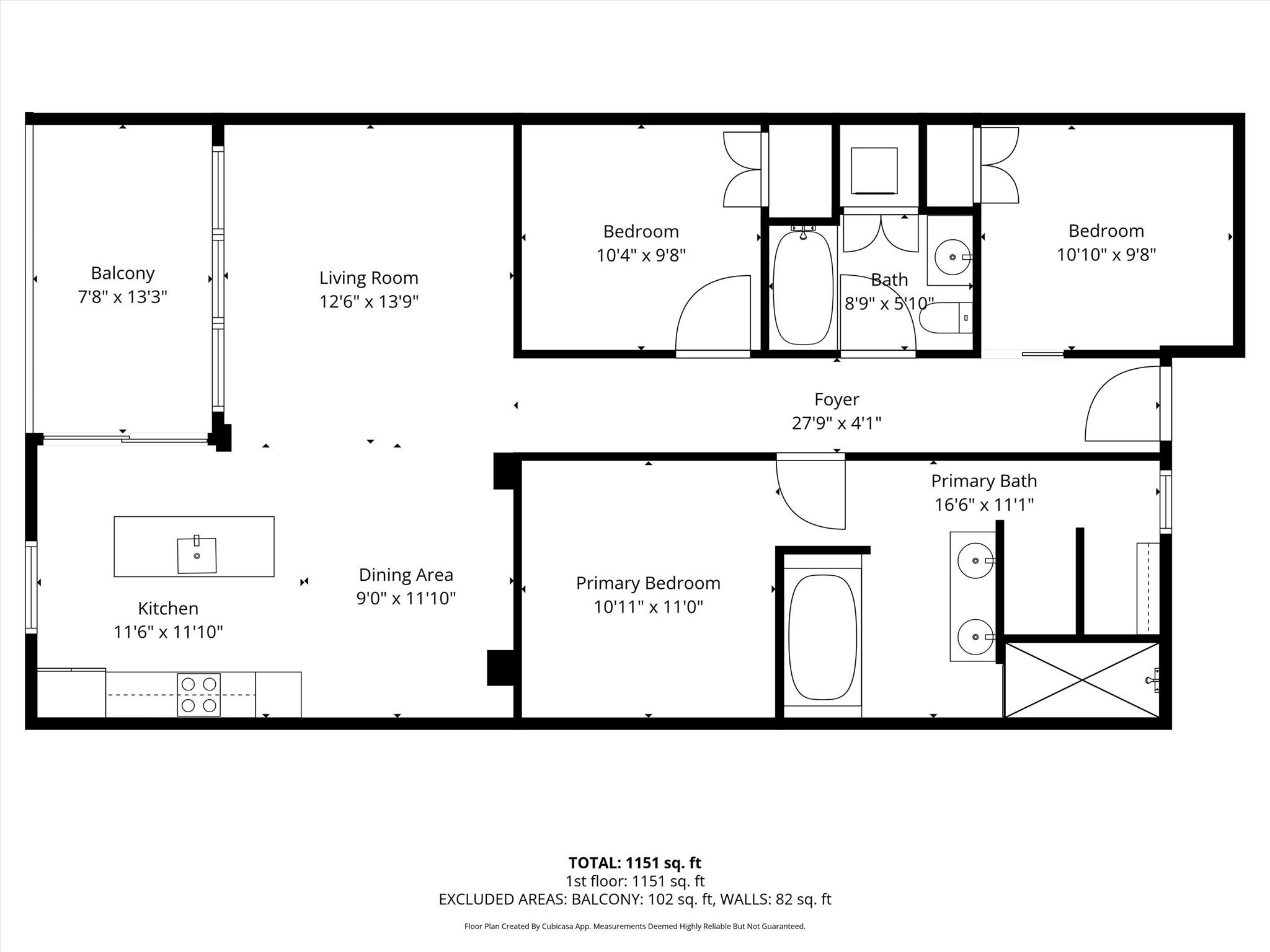
Floor plans / Dimensions / Descriptions
  • Living:
    12'6 x 13'9
    Primary Bedroom:
    10'11 x 11
    Bedroom:
    10'4 x 9'8
    Bedroom 2:
    10'10 x 9'8
  • Floors:
    Tile
    Countertop:
    Quartz
    Heating:
    Central Gas
    Cooling:
    Central Electric
    Dishwasher:
    Yes
    Disposal:
    Yes
    Microwave:
    Yes
    Oven:
    Freestanding Oven
    Appliances:
    Dryer Included,Refrigerator,Washer Included
    Energy Feature:
    Storm Windows
    Interior:
    Elevator,Fire/Smoke Alarm,Fully Sprinklered,Refrigerator Included,Wired for Sound
  • Private Pool:
    No
    Lot Description:
    Water View,Waterfront
    Water Amenity:
    Beach View,Beachfront,Beachside,Gulf View,Oceanview
    Parking Space:
    1
    Parking:
    Additional Parking,Assigned Parking,Controlled Entrance
    Access:
    Card/Code Access,Intercom
    Building Features:
    Concierge,Gym,Lounge
    Views:
    South
    Front Door Face:
    North
    Area Pool:
    Yes
    Exterior:
    Balcony/Terrace,Exercise Room,Party Room,Service Elevator,Trash Pick Up

Listed By:
Ashley Marquez

Keller Williams Horizons

The data on this website relating to real estate for sale comes in part from the IDX Program of the Houston Association of REALTORS®. All information is believed accurate but not guaranteed. The properties displayed may not be all of the properties available through the IDX Program. Any use of this site other than by potential buyers or sellers is strictly prohibited.

© 2026 Houston Association of REALTORS®.

GET IN TOUCH
avatar
Welcome Home Real Estate