For Sale

$650,000

HIGHLIGHTS:
  • Active
  • $9,405/month
  • 169 DOM
  • 2.5 Stories
  • 3 Beds
  • 3 Full & 1 half
  • 2,638 SqFT
Description

Experience the best of coastal living on Galveston’s West Bay in this private, manned, gated waterfront community. This canal-front home offers direct water access with a boathouse, lift, dock, and pier - perfect for bay life . Featuring open-concept lay-out, kitchen, dining, living area includes a spacious game room, media/study, elevator, and a third-story lookout with stunning bay views and multiple balconies. The large primary suite is complemented by a guest bedroom with ensuite bath and additional bedroom. Large utility room has additional sink for convenience. Additional highlights include an oversized 2-car garage with workshop, built in cabinets and sink, outdoor patio areas, and a private outdoor shower. Enjoy resort-style community amenities including pools, marina access, putt-putt golf, nature areas, green space, and more—all just a short drive to both Houston and Galveston. Ideal as a full-time residence or weekend escape. Price reflects the need for repairs and updat

Overview
  • MLS Number: 39355020
  • Type: Single-Family
  • Bedrooms: 3 - 4
  • Bathrooms: 3 Full & 1 half
  • Garages: 2 Attached
  • Size: 2,638 SqF
  • Land Size: 11,668 sqft
  • Year Built: 2005
Financial
Price:
$650,000
Price/SqFT:
$246.40
HOA Fee:
$3978 Annually
Tax Rate:
2.86956 %
Est. Monthly:
$9,405 *
Tax Amount:
$18,652
Amenities and features
  • Elevator
  • Garage Apartment
  • Public Pool
  • Sewer
  • Study Room
  • Water Access
  • Wheelchair Access
  • Elevator Ready
  • Energy Efficient
  • Waterfront
  • Water View
Property & Schools on Map
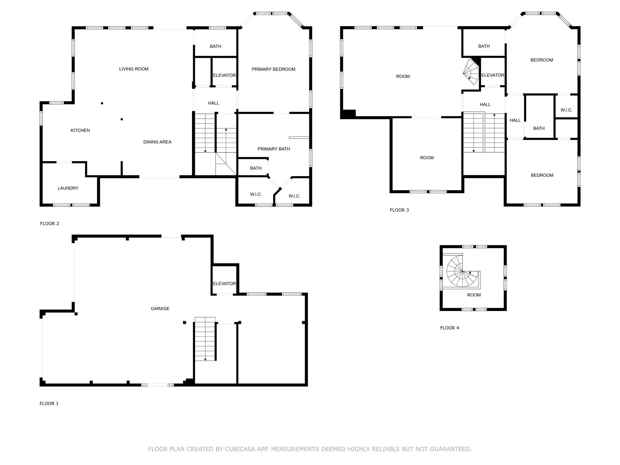
Floor plans / Dimensions / Descriptions
  • Living:
    20X10
    Dining:
    13X12
    Kitchen:
    14X13
    Primary Bedroom:
    17X12
    Primary Bath:
    13X12
    Utility Room:
    9X7
  • Bedroom:
    13X12
    Bedroom 2:
    12X11
    Game Room:
    24X15
    Home Office/Study:
    12X12
  • Extra Room:
    10X10
  • Floors:
    Carpet,Laminate,Tile,Vinyl
    Countertop:
    Granite
    Bathroom Description:
    Half Bath,Primary Bath: Double Sinks,Primary Bath: Jetted Tub,Primary Bath: Separate Shower,Primary Bath: Soaking Tub,Secondary Bath(s): Shower Only,Vanity Area
    Bedroom Desc:
    All Bedrooms Up,Primary Bed - 2nd Floor,Sitting Area,Split Plan,Walk-In Closet
    Kitchen Desc:
    Breakfast Bar,Kitchen open to Family Room,Pantry
    Room Description:
    Breakfast Room,Den,Family Room,Formal Dining,Gameroom Up,Guest Suite,Home Office/Study,Living Area - 2nd Floor,Utility Room in House
    Heating:
    Central Gas
    Cooling:
    Central Electric
    Connections:
    Gas Dryer Connections,Washer Connections
    Dishwasher:
    Yes
    Disposal:
    Yes
    Compactor:
    Yes
    Microwave:
    Yes
    Range:
    Gas Cooktop
    Oven:
    Electric Oven
    Energy Feature:
    Attic Vents,Ceiling Fans,Digital Program Thermostat,Insulated Doors,Insulated/Low-E windows,Storm Windows
    Interior:
    Balcony,Crown Molding,Disabled Access,Elevator,Elevator Shaft
  • Roof:
    Composition
    Foundation:
    Slab
    Private Pool:
    No
    Exterior Type:
    Cement Board
    Lot Description:
    Subdivision Lot,Water View,Waterfront
    Water Amenity:
    Boat House,Boat Lift,Bulkhead,Canal Front,Canal View
    Garage Carport:
    Additional Parking,Auto Garage Door Opener,Boat Parking,Workshop
    Garage Size:
    46X25
    Water Sewer:
    Public Sewer,Public Water,Water District
    Area Pool:
    Yes

Listed By:
Theresa Riddle

Gusto Real Estate, LLC

The data on this website relating to real estate for sale comes in part from the IDX Program of the Houston Association of REALTORS®. All information is believed accurate but not guaranteed. The properties displayed may not be all of the properties available through the IDX Program. Any use of this site other than by potential buyers or sellers is strictly prohibited.

© 2026 Houston Association of REALTORS®.

GET IN TOUCH
avatar
Welcome Home Real Estate